CASA MIRADOR
Diciembre de 2020
Gorliz, Bizkaia
Promotor privado
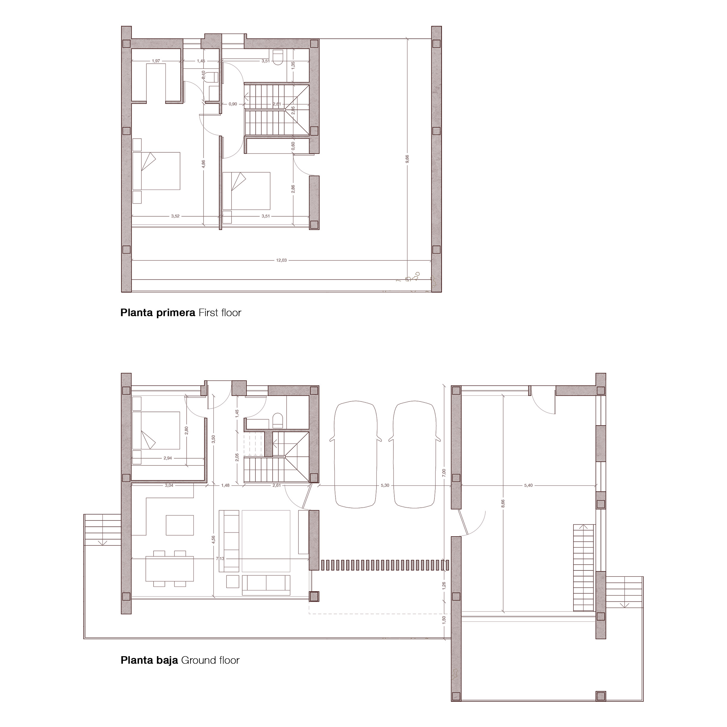
Una vivienda que mira afuera. Una vivienda sobre un terreno con una pronunciada pendiente, que aprovecha mediante su escalonamiento descendente. Al producirse el acceso por la cota más elevada, la plataforma en la que se asienta el edificio reposa a un nivel tres metros inferior a la cota de acceso. La vivienda se divide en dos zonas, el área de los espacios vivideros propiamente dichos y una amplia zona de txoko, logrando que la diferenciación se plasme en la volumetría exterior.








