LOPE DE VEGA 7
Diciembre de 2025
Getxo, Bizkaia
Obra propia
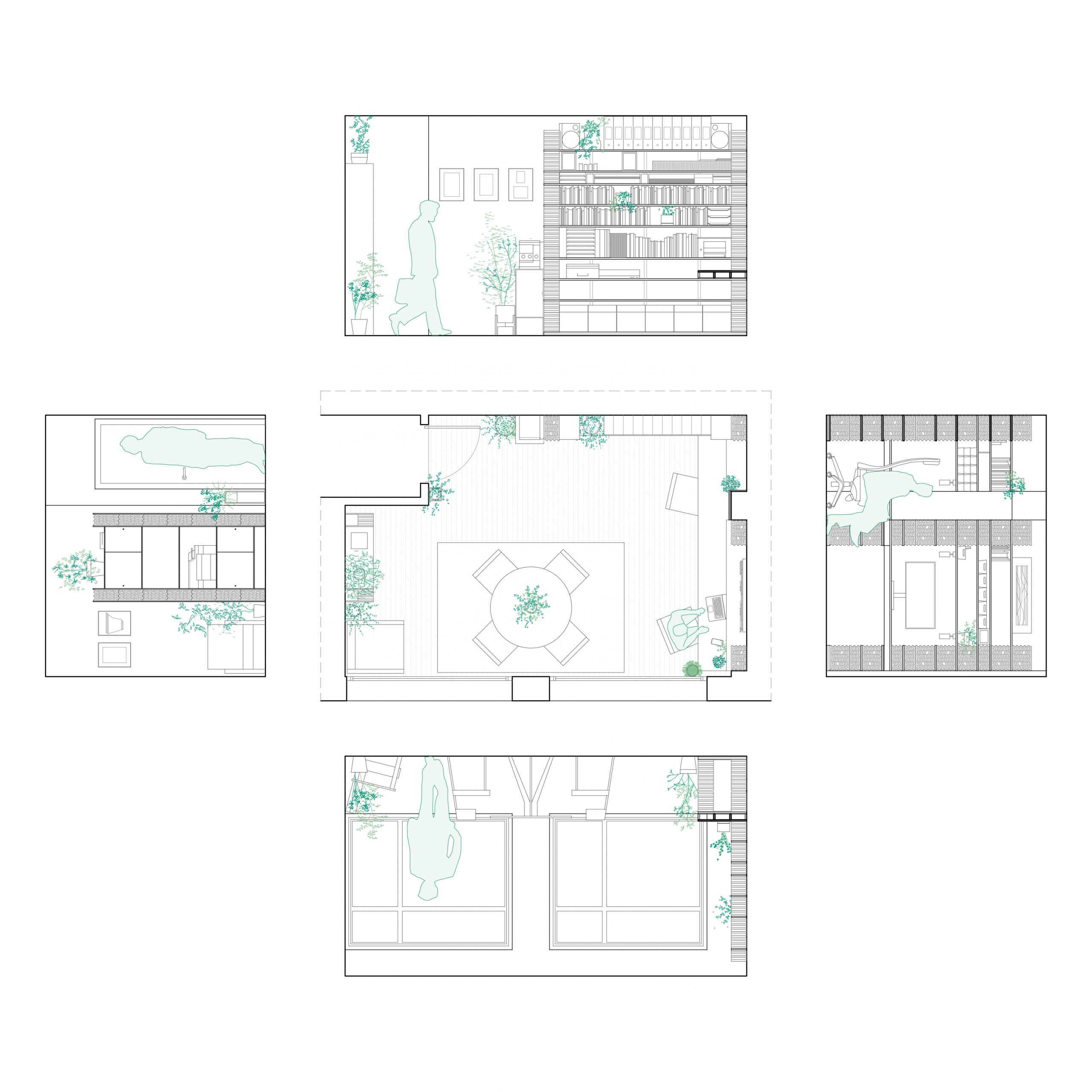
El objetivo en el desarrollo de la oficina de Recon Arquitectura ha sido evidenciar que aquí la arquitectura no solo se representa, sino que se practica. La coherencia entre función, materia y construcción hace que el propio espacio se convierta en un manifiesto operativo del estudio. Por tanto, el proyecto se plantea como un ejercicio de precisión contenida, donde la definición del espacio de trabajo se articula a partir de la propia tectónica de los materiales. El perímetro de la habitación sostiene la actividad material diaria del estudio y revela, sin artificios, la lógica constructiva que lo configura. En contraste, el espacio central se libera para acoger las reuniones y el intercambio de ideas.





