MI PATIO Y EL NUESTRO
Abril de 2022
Valladolid
Concurso – Anulado
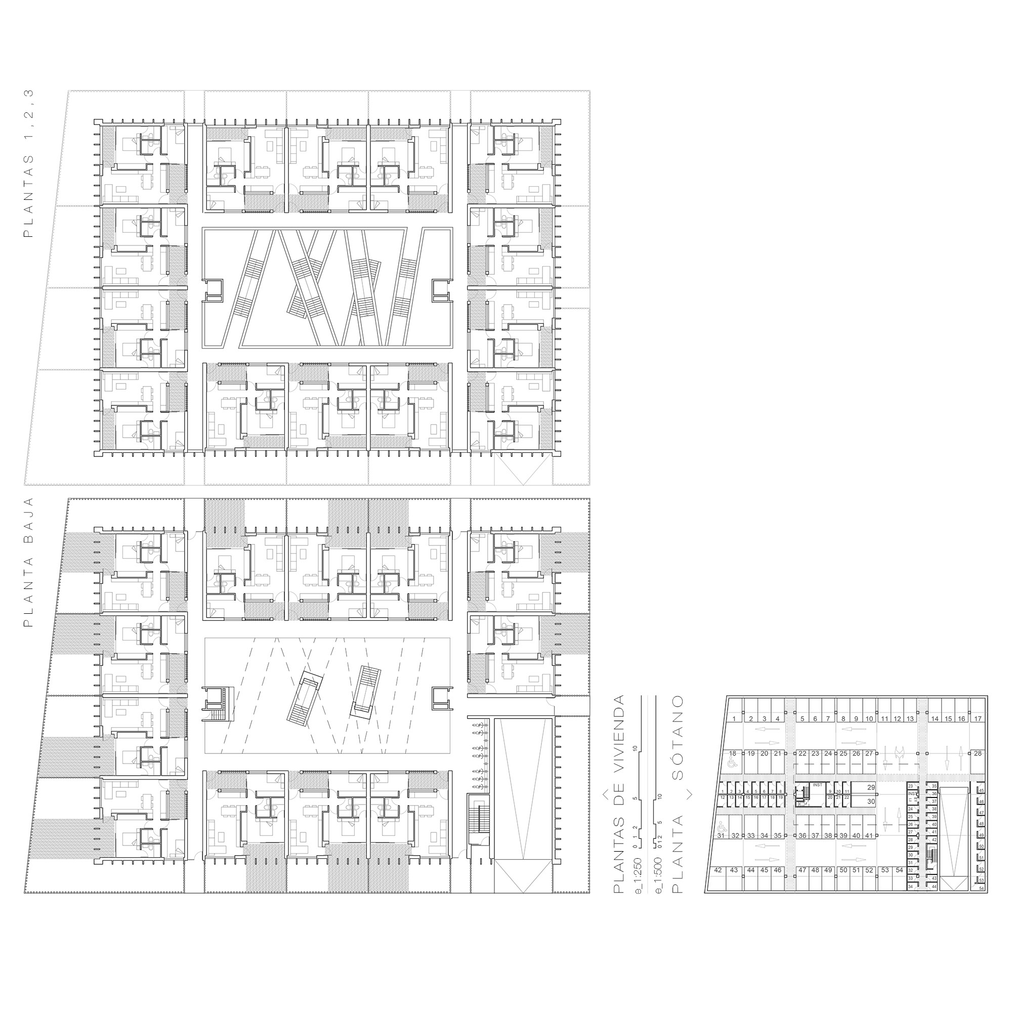
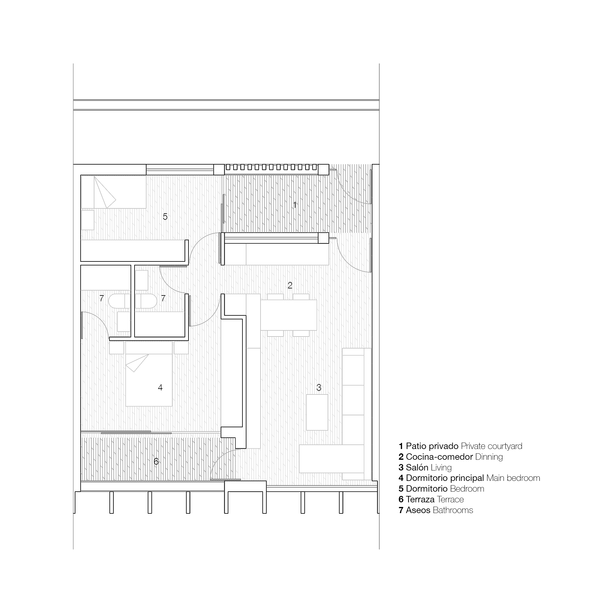
Las viviendas se articulan en torno a un patio público que supone el germen del proyecto. El límite entre el patio público y la esfera privada que supone la vivienda es articulado a través de un patio privado en cada vivienda. Concurso para 54 viviendas en régimen de alquiler social en Valladolid que fue anulado por la propiedad antes de la fecha de presentación.





