SPACE INVADERS
Julio de 2020
San Sebastián, Gipuzkoa
Concurso
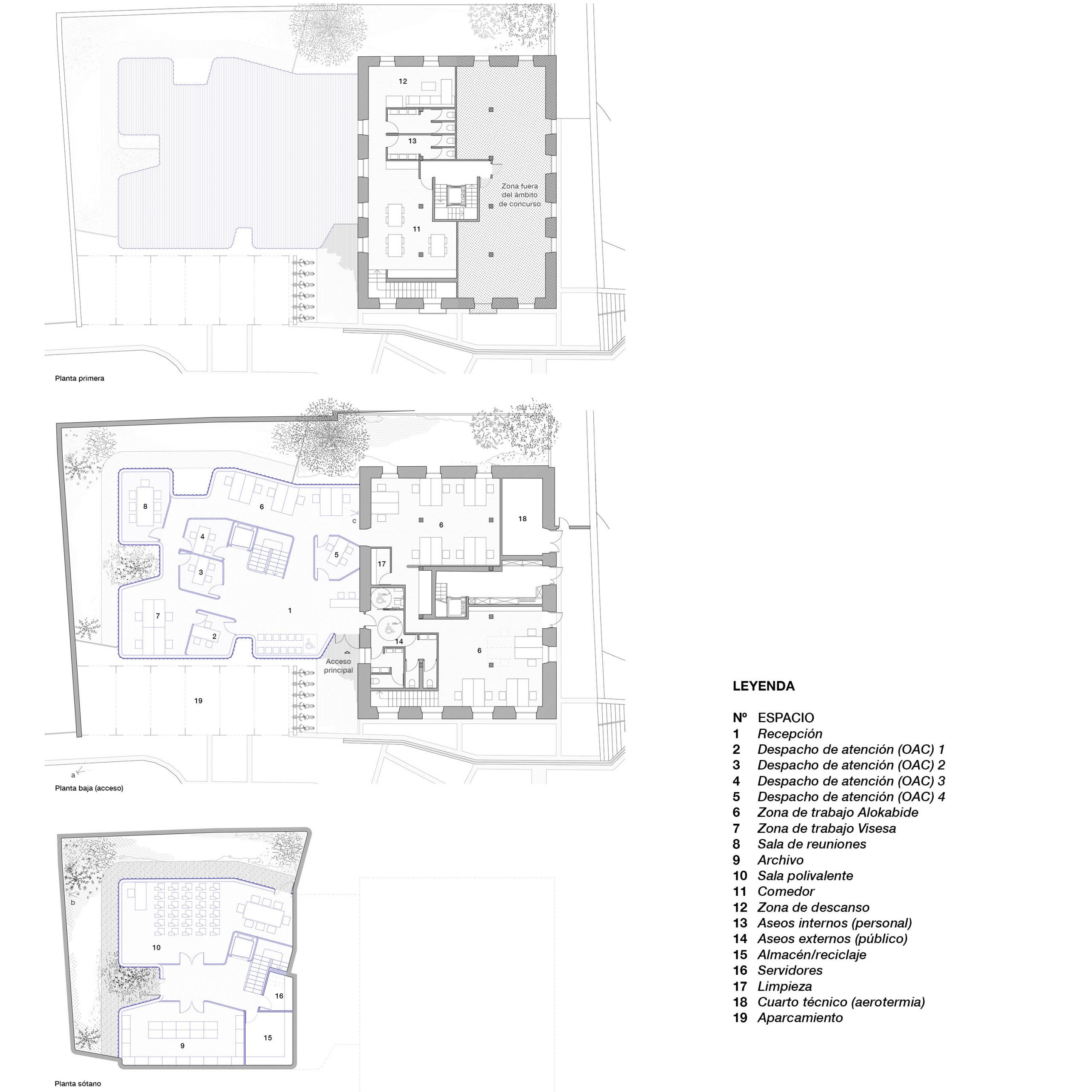
El ejercicio que se proponía en el concurso consistía en la ampliación del edificio de atención ciudadana y oficinas de Alokabide en San Sebastián, un edificio sencillo y racionalista, con escaso interés arquitectónico. Nuestra propuesta consistió en el añadido de un volumen orgánico y luminoso que renovara la imagen de la sociedad a la vez que se diferenciara del edificio existente, desarrollándose en planta baja y sótano rodeado de un patio exterior que lo dotara de luz y ventilación natural. Internamente, el volumen se organiza separando las zonas de atención al público de oficinas mediante una serie de despachos de atención con acceso desde ambas zonas.




